Appartamento signorile nuovo A4 in geotermia con le migliori ultime tecnologie

In vendita
Appartamento
Pinerolo (Ospedale, Cottolengo)
352.000 €
Descrizione
Pinerolo, in zona Cottolengo, precisamente in via San Pietro Val Lemina 28, è iniziato il nuovo complesso immobiliare Pinerolo residenza del sole.
Edificio a emissioni zero con tecnologia costruttiva di massimo livello.
Maggiori dettagli anche su www.pineroloresidenzasole.it

Posizione strategica, a pochi minuti dal centro storico.
Un nuovo modo di abitare tra comfort e sostenibilità.

Si tratta di una palazzina di nuova costruzione di ultimissima generazione, con tutte le più innovative tecniche costruttive.

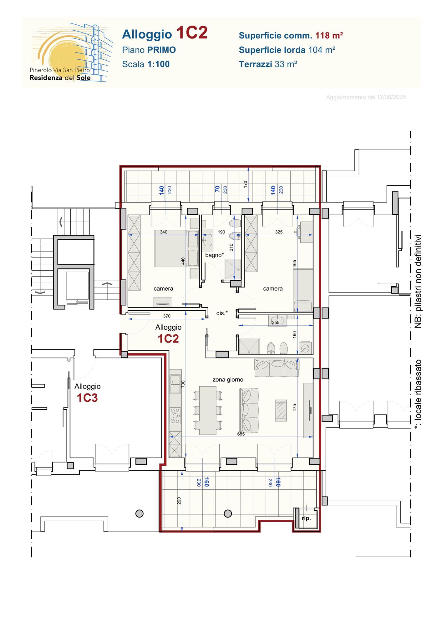
L'appartamento oggetto di annuncio è così composto:
Piano: Primo con ascensore e senza barriere architettoniche.
Composizione: Ingresso su soggiorno - cucina, disimpegno, due bagni, due camere, balcone, terrazzino, cantina e volendo (prezzo a parte), box singoli o doppi
Arie: 2
Superficie: 104 mq
terrazzi: 33 mq


Caratteristiche costruttive:
- Murature perimetrali ad alta efficienza termica ed acustica
- Struttura antisismica di ultima generazione;
- Murature interne isolate con isolamento acustico;
- Tetto ventilato;
- Vespai ventilati;
- Isolamento acustico di ultima generazione;
- Fotovoltaico condominiale con batterie di accumulo;
- Possibilità di fotovoltaico ad uso privato;
- Impianto di riscaldamento geotermico a zero emissioni;
- Riscaldamento a pavimento a bassa temperatura;
- Ventilazione meccanizzata;
- Serramenti in alluminio a vetri stratificati, bassoemissivi con predisposizione per zanzariere
- Tapparelle elettriche a lamelle orientabili;
- Domotica;
- Finiture di pregio;
- Porta blindata in classe 3;
- Videosorveglianza;
- Zero barriere architettoniche;
- Verde privato al piano terreno;
- Box auto predisposti per la ricarica dei veicoli;
- Aria condizionata predisposta;
- Antifurto predisposto;
- Zanzariere predisposte;
. ... e molto altro ancora.


Perchè scegliere questo immobile:
- Spese di riscaldamento e di elettricità ridotte;
- Utilizza energia pulita, sicura e rinnovabile
- Ottimo isolamento acustico e termico
- Valore immobiliare nel tempo: una scelta che unisce comfort e tecnologia.
- Domanda in crescita di immobili ad alta efficienza;
- Immobili finanziabili a tassi agevolati;
- Immobili pronti per la direttiva green case europee.

Acquisto da impresa. Possibilità di permute immobiliari.

Per informazioni e appuntamenti direttamente in cantiere:
3357053012 oppure 3355245246 oppure 0115683700

Possibile acquistare l'immobile con la formula della permuta o del ritiro garantito. Per maggiori informazioni e una valutazione gratuita del Vs. immobile, potete contattarmi al 3355245246. Fabrizio Ruffinatto
……
Altri immobili su:
🌐 www.nordedil.info 
🌐 www.icrcostruzioni.it 


Caratteristiche principali
Codice:
1C2
Città:
Pinerolo (Ospedale, Cottolengo)
Categoria:
Appartamento
Spese condominiali:
850 € / anno
Locali:
4
Camere:
2
Bagni:
2
Mq:
118
Box:
1
Mq Box:
18
Balconi:
2
mq Terrazzo:
33
Piano:
1
Anno:
2027
Classe energetica:
A4
Stato Immobile:
Nuovo
Grado:
Signorile
Posizione:
Centro
Panorama:
Vista Aperta
Orientamento:
Sud Nord
Lati Liberi:
2
Giardino:
No
Arredi:
Non Arredato
Tipo Soggiorno:
Soggiorno
Tipo Cucina:
Abitabile
Riscaldamento:
Autonomo
Tipo Riscaldam.:
Pompa di Calore
Tipo Impianto:
Pavimento
Fonte Energetica:
Elettrico
Acqua Calda:
Autonoma
Raffrescamento:
Predisposizione
Infissi:
Alluminio Triplo Vetro
Serramenti:
Nuovo
Persiana:
Tapparella Metallo
Pavim. Giorno:
Personalizzato
Pavim. Notte:
Personalizzato
Pavim. Cucina:
Personalizzato
Pavim. Bagno:
Personalizzato
Accesso Disabili:
Nessuna Barriera
Accesso interno disabili:
Pieno accesso
Isolamento:
Presente
Isolamento termico:
Cappotto interno
Isolamento acustico:
Isolamento completo
Spessore cappotto (cm):
20
Destinato a residenti:
Si
VMC:
Si
Accessori
Antifurto
Aria Condizionata
Ascensore
Bagno Handicap
Cancello Elettrico
Fibra Ottica
Geotermia
Impianto Domotica
Impianto Fotovoltaico
Impianto Satellitare
Porta Blindata
Rete Dati
Ripostiglio
Tapparelle Elettriche
Tripli Vetri
Video Citofono
Video Sorveglianza
Zanzariere
Mappa
via san pietro val lemina, 28 - Pinerolo (TO)
Planimetrie
Richiedi informazioni
Invia
Cookie preference