Toggle navigation
Home
Immobili
Nuove costruzioni
Vendite
Affitti
Attività commerciali
Immobili commerciali
Immobili di prestigio
Immobili da investimento e all'asta
Appartamenti con giardino o terrazzo
Chi siamo
Servizi
Vendere con noi è facile
Affittare con noi è facile
Invia la tua richiesta
Lavora con noi
Contatti
Valuta immobile
it
it
TERRENO EDIFICABILE IN CENTRO
In vendita
Terreno Edificabile
Osasco
550.000 €
mappale
terreno
terreno
terreno
terreno
terreno
terreno
terreno
mappali
mappali
mappali
terreno
terreno
terreno
terreno
terreno
terreno
terreno
terreno
Previous
Next
Descrizione
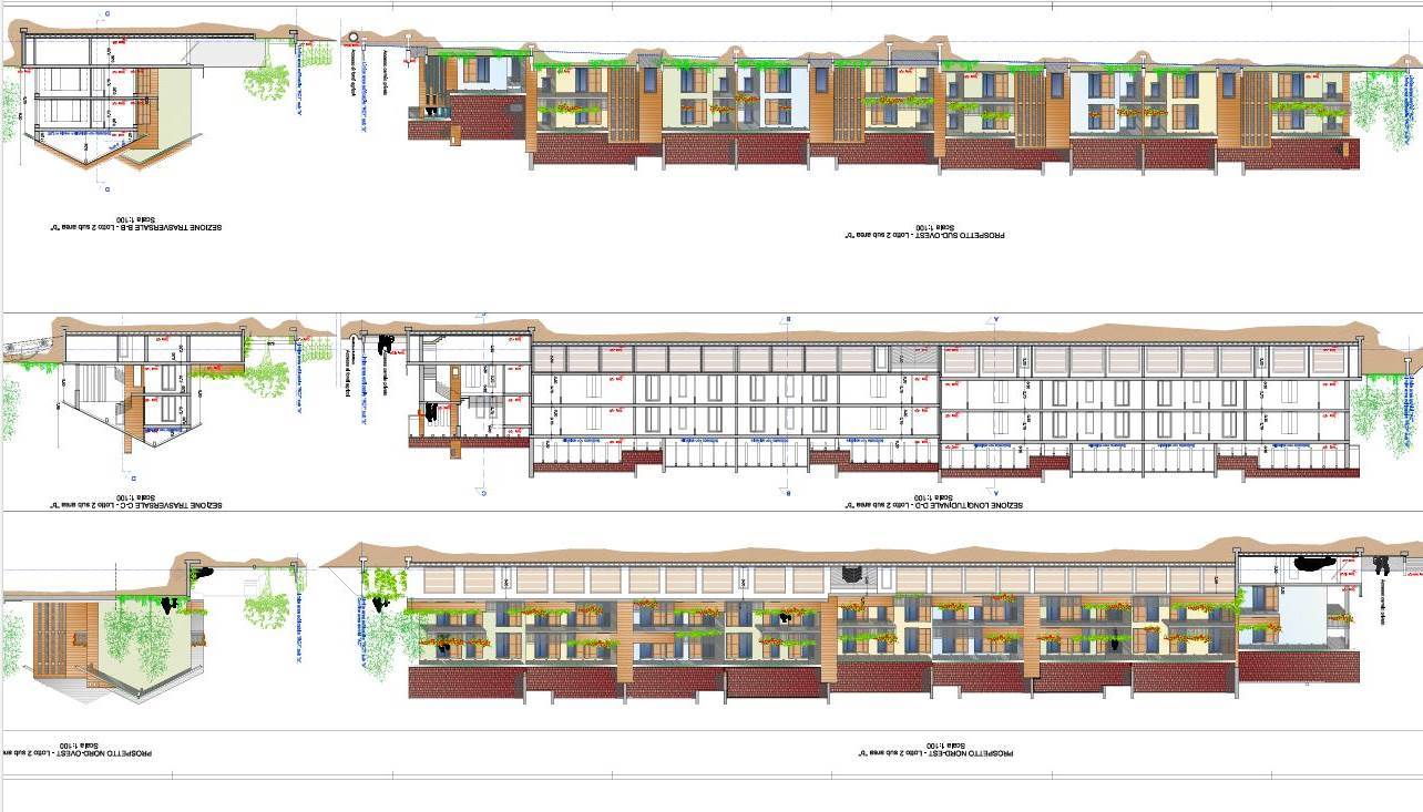
Osasco, in posizione centrale, proponiamo in vendita terreno edificabile con progetto già esistente e pronto per essere edificato.
Il progetto prevede la realizzazione di un fabbricato composto da vari appartamenti al piano terreno e al piano primo con soprastante sottotetto. Oltre a box auto vari e cantine.
Tale progetto è possibile variarlo e personalizzarlo.
Acquistabile anche volendo parte del terreno.
Gli oneri di urbanizzazione sono già stati in parte pagati.
Posizione fantastica, in centro paese ma tranquilla ed ottimamente esposto.
Gode di bella vista
Caratteristiche principali
Codice:
V007586
Città:
Osasco
Categoria:
Terreno Edificabile
Locali:
1
Mq:
1564
Classe energetica:
Non classificabile
Posizione:
Centro
Indice Edificabilià:
0.50
Oneri Urbanizzazione:
Si
Stato terreno:
Urbanizzato
Mappa
via monsignor giovanni de marchi - Osasco (TO)
Distanze
Posizione
Centro
50 m
Parco pubblico
10 m
Istruzione
Scuola materna
100 m
Scuola elementare
100 m
Scuola media
1 km
Scuola superiore
5 km
Università
45 km
Mezzi di trasporto
Aeroporto
70 m
Fermata metro-bus-tram
20 m
Altri servizi
Banca
100 m
Chiesa
100 m
Farmacia
100 m
Ospedale
5 km
Supermercato
1 km
Richiedi informazioni
Autorizzo il trattamento dei miei dati personali in base al Regolamento UE n. 679/2016 -
Privacy Policy
Autorizzo al trattamento dei dati per finalità di marketing, attività promozionali, offerte commerciali ed indagini di mercato.
Invia
Invia la tua richiesta
Mantieni impostazioni di default X
Uso dei cookies
Questo sito fa uso di cookies. I nostri cookies (propri) e quelli dei nostri Partners (cookies di terzi) servono per poterti offrire un'esperienza unica con noi. Per questo motivo, insieme ai nostri partners, raccogliamo e processiamo informazioni non sensibili (come l'identificatore del tuo dispositivo o le pagine che visiti).
In qualsiasi momento potrai eliminare, modificare o verificare le informazioni che condividi in
Cookie preference
o nella nostra
Cookie Policy
e
Privacy Policy
.
Necessari
Funzionali
Profilazione
Analitici
Accetta tutti
Rifiuta tutti
Accetta selezionati
Cookie preference