Ampia villa di pregio volendo bifamiliare con ampio giardino

In vendita
Villa
Cumiana
430.000 €
Descrizione
Cumiana, zona Costa – villa indipendente con 4451 mq di giardino, vista aperta e totale privacy

In posizione precollinare, dominante ma non isolata, proponiamo in vendita una villa di pregio di ampia metratura immersa nel verde, con uno splendido giardino pianeggiante di circa 4451 mq, completamente recintato e curato. Possibilità di ampliamento del terreno per ulteriori 3000 mq circa.

La proprietà gode di un contesto riservato ma abitato, con un panorama aperto che da un lato abbraccia il paese sottostante e dall’altro le colline circostanti, offrendo una qualità abitativa rara per tranquillità e luminosità.

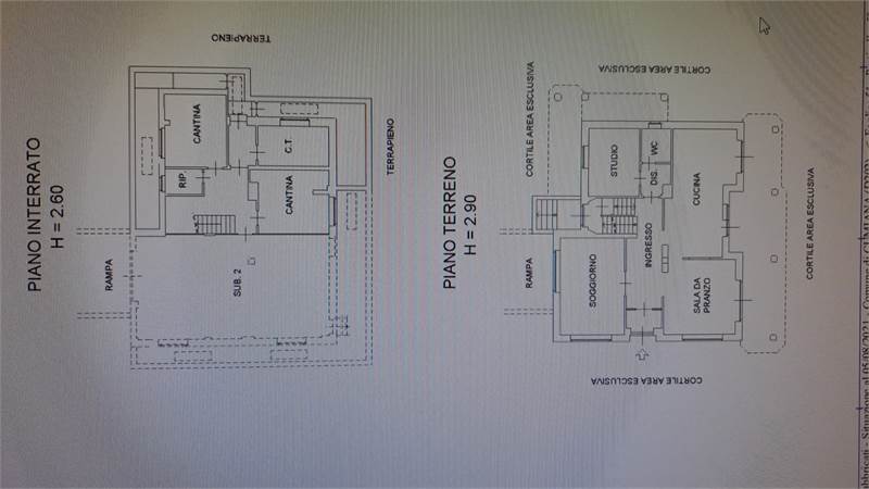
L’abitazione si sviluppa su più livelli. Al piano terreno si viene accolti da un ingresso che conduce a un ampio salone, uno studio, una cucina di generose dimensioni, una camera, un bagno e un grande porticato coperto, ideale per vivere gli spazi esterni in ogni stagione.

Il piano primo ospita cinque camere, due bagni e un terrazzo con affaccio aperto sul verde.

Il piano sottotetto, attualmente al grezzo, rappresenta un’ulteriore opportunità di sviluppo per ricavare nuovi ambienti abitativi o spazi accessori.

Al piano interrato troviamo un’autorimessa di circa 60 mq (ci stanno 3 auto volendo), 2 locali sgombero, bagno e centrale termica.

La casa si presenta in ottime condizioni interne, con serramenti di pregio recentemente sostituiti e caldaia a condensazione nuova, elementi che garantiscono comfort ed efficienza.

Grazie alla distribuzione degli spazi e alla metratura importante, l’immobile si presta anche alla realizzazione di una soluzione bifamiliare, ideale per due nuclei che desiderano condividere un contesto esclusivo senza rinunciare all’indipendenza, con un appartamento al piano terreno senza barriere architettoniche e uno al piano primo più sottotetto.

Una soluzione perfetta per chi cerca una casa rappresentativa, immersa nel verde, con grandi spazi interni ed esterni e una posizione panoramica a pochi minuti dai servizi.

Per altri dettagli potete contattarmi al +393355245246
Possibile acquistare l'immobile con la formula della permuta o del ritiro garantito. Per maggiori informazioni e una valutazione gratuita del Vs. immobile, potete contattarmi al 3355245246. Fabrizio Ruffinatto
……
Altri immobili su:
🌐 www.nordedil.info  Per tutte le nostre proposte.
🌐 www.icrcostruzioni.it  Per immobili a emissioni zero a Pinerolo e Piossasco.

Avete un immobile da vendere o affittare?
Vi offro:
- Valutazione gratuita certificata
- Soluzioni per il massimo realizzo (anche con permuta o ritiro immediato)
- Locazione con canone garantito

Richiedete la valutazione qui:
🌐 www.agentpricing.com/f.ruffinatto

Per informazioni e appuntamenti:
Whatsapp al numero 3355245246.
Telefono ufficio Nordedil: 0115683700
Mail: torino@nordedil.info
www.facebook.com/nordedil

Caratteristiche principali
Codice:
V007713
Città:
Cumiana
Categoria:
Villa
Locali:
9
Camere:
6
Bagni:
2
Mq:
368
Box:
1
Mq Box:
60
Posti auto:
4
Mq Giardino:
4451
Balconi:
2
Mq Balcone:
15
Terrazzi:
1
mq Terrazzo:
30
Piano:
Terra
Anno:
1973
Anno ristrutturazione:
2021
Classe energetica:
D
181,01
Stato Immobile:
Buono
Grado:
Medio
Posizione:
Collina
Panorama:
Vista Aperta
Orientamento:
Nord Ovest Sud Est
Lati Liberi:
4
Giardino:
Privato
Tipo Soggiorno:
Salone
Tipo Cucina:
Abitabile
Riscaldamento:
Autonomo
Tipo Riscaldam.:
Caldaia a Condensazione
Tipo Impianto:
Radiatori
Fonte Energetica:
Metano
Acqua Calda:
Autonoma
Raffrescamento:
Split
Infissi:
PVC Doppio Vetro
Serramenti:
Nuovo
Persiana:
Tapparella PVC
Pavim. Giorno:
Ceramica
Pavim. Notte:
Parquet
Pavim. Cucina:
Ceramica
Pavim. Bagno:
Ceramica
Accesso Disabili:
Nessuna Barriera
Accesso interno disabili:
Parziale
Isolamento:
Presente
Accessori
Aria Condizionata
Canna Fumaria
Doppi Vetri
Inferriate
Ingresso Indipendente
Mappa
strada deserta - Cumiana (TO)
Planimetrie
Richiedi informazioni
Invia
Cookie preference